







DET RÖDA TORPET
Tillbyggnad, fritidshus
PROJEKTBESKRIVNING
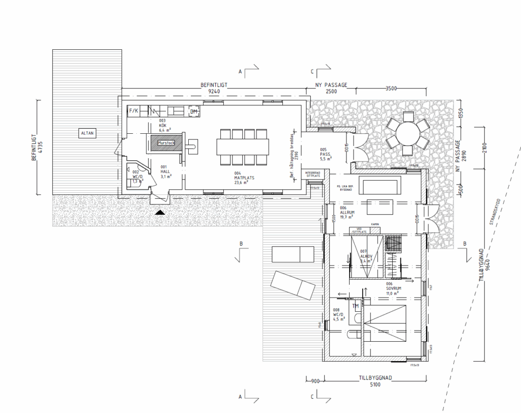
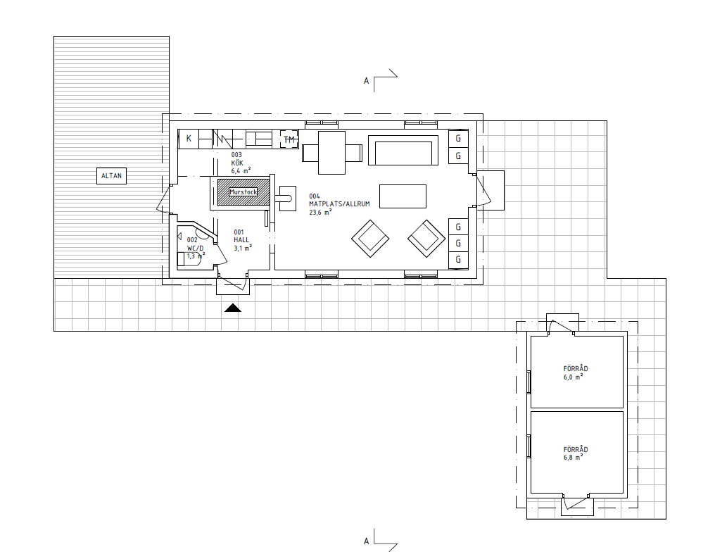
På en udde utanför Kristianstad ska ett rött litet torp dubblas i storlek. Det charmiga lilla fritidshuset ska byggas till för att få plats med barn och barnbarn.
Genom en passage kopplas den gamla och nya delen ihop. På så sätt görs minimal åverkan i den befintliga stugan och de två volymerna blir enkla att skilja åt. Samtidigt behålla släktskap genom materialval och proportioner.
Här får naturen gärna komma nära.
Plats: Kristianstad
Beställare: Privat
Projektstart: 2025
Arkitekt: Vika arkitekter
All rights reserved
BOKA EN KOSTNADSFRI
RÅDGIVNING
